Our solid operable wall systems give you the freedom to adapt your environment with ease. Whether you need to divide a classroom, expand a conference room, or create flexible event areas, our operable walls provide the perfect balance of style, strength, and simplicity.
Built to last, our 100 Series system combines premium materials with precision engineering to deliver smooth operation and exceptional performance. From corporate offices and educational facilities to clubs, restaurants, and hospitality venues, Spacial Concepts has the solution to transform your space.
We take pride in delivering affordable, Australian-made solutions backed by personal service and decades of expertise. When you choose our solid operable walls, you’re investing in flexibility, performance, and long-term value.
A solid operable wall is a versatile product designed to make the most of limited space. Our acoustic panels move with ease within the top track with no unsightly floor tracks or guides etc. Neat and clean, solid operable walls complement the room. They provide the acoustic qualities of a fixed wall and are fitted with quality seals and closures. Our operable walls use proven tracking and trolley systems to ensure that they stack correctly and close smoothly.
The 100 Series has two options for the perimeter frame:
Even our entry-level solid operable walls deliver superior acoustic performance. When selecting the right sound rating for your project, it’s important to think beyond the wall itself. As with any system, a chain is only as strong as its weakest link. Sound can escape through openings like ceiling voids, air ducts, or gaps in the room. To achieve the best result, choose a wall system that not only meets your performance goals but also complements the overall acoustics of your space.
Review the below rating guide or our specification matrix for choosing what your project needs.
Acoustic systems for walls reduce sound transmission, airborne and structure-borne. This can be accomplished by sealing leaks that would otherwise allow the flow of airborne sound, and through the use of proper construction at wall and floor intersections, prevent the transmission of structure-borne sound.
Spacial Concepts utilises a collection of proven tracking and trolley systems. Choosing the most suitable is a specialised process and depends on stacking needs, panel details, and the track layout.
A simple straight track. Each panel is suspended from a central trolley and typically hinged in pairs. Often closed by a jamb hung pass-door.
This is a simple and cost-effective way to stack away operable wall panels.
The panels fold away on the main run of track to one or both ends. The head track will need to be supported continuously (all along each line of track) by either a concrete slab or a steel beam.
The head track will need to be supported continuously (all along each line of track) by either a concrete slab or a steel beam.
Spacial Concepts offers two high-performance track systems.
Our premium Number 1 Track and Curves system delivers superior performance and a sleek, refined look – perfect for high-end or architecturally demanding applications.
For a more budget-conscious option without compromising reliability, our Number 4 Track system features high and low rollers that ensure smooth panel diversion.
Remote Stack panels have omnidirectional carriers to negotiate X, L or T junctions and panels are stacked completely away from the main track, sometimes in a cupboard or recess.
The panels run along the main line of track and turn perpendicular to the track with both trolleys off the centreline of the head track and stacking into a formed pocket or stacking bay.
The head track will need to be supported continuously (all along each line of track) by either a concrete slab or a steel beam.
Spacial Concepts offers two high-performance track systems.
Our premium Number 1 Track and Curves system delivers superior performance and a sleek, refined look – perfect for high-end or architecturally demanding applications.
For a more budget-conscious option without compromising reliability, our Number 4 Track system features high and low rollers that ensure smooth panel diversion.
Operable walls need a method of acoustically opening and closing the system.

Suitable for walls up to 3.0m where the last panel is a full height door hinged off a fixed jamb. Door panels hinged off adjacent panels can accommodate heights up to 2.7m. Typical door widths are 750-950mm. Door closures are able to meet DDA requirements.

This panel features an over-sleeve that can be expanded sideways to lock the wall in place. This is operated by a removable handle in the face of the panel and is usually located at the stacking end of the wall.
The Spacial Concepts wall system is unique in that sound-ratings are not dependent on using retractable seals. You can specify the seals to suit the project and budget without compromising acoustic performance.
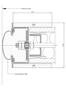
Top seals are set at a fixed 30mm. Seals are (2) triple fingers for excellent acoustics.
Sweep seals can accommodate +/-5mm floor level variation.
Retractable bottom seals allow for easier movement and the ability to cope with out-of-level floors.
Make an operable wall highly practical or highly creative or both. Accessory options for your operable wall include:

with recessed pen pockets



At Spacial Concepts, we stand behind the quality and durability of every product we deliver and offer a standard 2-year warranty on all our products.
The confidence in our work extends well beyond installation. This warranty reflects our commitment to supporting our customers and ensuring long-term satisfaction with every project.
For those seeking additional peace of mind, extended warranties and comprehensive service and maintenance agreements are also available.
Whether it’s ongoing system performance, preventative upkeep, or on-demand support, our team is here to help keep your environment operating at its best. At Spacial Concepts, your experience doesn’t end at delivery, it’s just the beginning of a lasting partnership.

SOLID OPERABLE WALL DETAILS | |
Panel Thickness | 100mm |
Panel Construction | MDF |
Maximum Panel Width | 1.2m |
Maximum Height | 6.0m |
Minimum Panel Width | 650mm |
Frame Width | 10mm |
Acoustic Rating Rw | Rw 45, Rw 47, Rw 50 |
Stacking Configuration | Centre Stack, Side Stack, Remote Stack |
Floor Levels | ±5mm |
Panel Finish Options | Pinboards, Fabric, Whiteboards, Laminates, Veneer |












